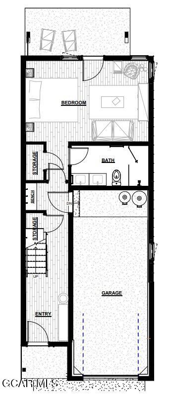
144 Clayton Ct Unit 1, Fraser, CO Modern Design. Mountain Living. Exceptional Opportunity. Welcome to 144 Clayton Ct Unit 1, a stunning end-unit townhome in the highly anticipated Strom Townhomes development in Fraser, Colorado. Perfectly positioned on the banks of the Fraser River with sweeping views of Byers Peak and Winter Park Resort, this newly constructed home blends sleek contemporary architecture with the warmth of mountain living. Whether you're enjoying your morning coffee to the sounds of the river or gearing up for a day on the slopes, this home offers the lifestyle you've been dreaming of. Key Features Premier End-Unit Location Enjoy enhanced privacy, abundant natural light, and unobstructed mountain and river viewsall from one of the most desirable homes in the development. Spacious, Thoughtful Layout This 4-bedroom, 3.5-bath home features an open-concept living area that effortlessly connects kitchen, dining, and living spacesideal for entertaining or relaxing by the fire. The 9 foot ceilings in every space create a grand experience. This home can comfortably sleep 10 people Better for you, Better for the Environment Every space and material in this mountain retreat was designed with the health of the owner and the planet in mind. Natural light, green materials, and a designated Peloton area encourage the active lifestyle, while upgraded insulation, high efficiency systems, and runoff filtration keep the earth and your wallet happy. Modern, High-End Finishes Experience clean, stylish design with upgraded quartz countertops, custom cabinetry, radiant in-floor heating, energy-efficient appliances, and upscale fixtures throughout. Seamless Indoor-Outdoor Living Floor-to-ceiling windows, a private riverside patio, and an upper deck let you enjoy the natural beauty of Fraser year-round. Oversized 1-Car Garage Ample storage for mountain gear, plus parking for two additional vehicles in the driveway. Location Benefits Ideal Setting in Fraser Just minutes to Winter Park Resort, world-class skiing and snowboarding, as well as hiking and biking trails, fishing steps from your door, and Fraser's vibrant downtown with over twenty restaurants and bars. Excellent Transportation Access Only a three-minute walk to the Fraser Amtrak station with direct service to downtown Denver and Denver International Airport and on the bus line, allowing you to leave the car at home. Strong Investment Potential Short- and long-term rentals are permitted by both the HOA and the Town of Fraser, creating flexibility for personal use and income generation. Smart, Sustainable Living Designed for modern mountain lifestyles, Strom Townhomes offer low-maintenance living and efficient design that harmonizes with the natural surroundings. Don't Miss This Rare Opportunity Unit 4 is one of the most coveted homes in this limited collection of boutique townhomes. Whether you're looking for a full-time residence, a second home, or a high-performing investment property, this riverside townhome delivers on every level. Contact us today for more information, detailed floor plans, or to schedule a private tour. Limited inventory remaining.

Listing Tools

Listed by Greg Bechler of Outwest Colorado,LLC

Listing Sold by Real Estate of Winter Park

Property Details of 144 Clayton Court, Unit 1

Property Details

Interior Features

Exterior Features

Utilities and Appliances

Community

Map Location

Driving Directions

 Based on information submitted to the Grand County BoR MLS as of March 16, 2026 1:16 PM EDT . All data is deemed reliable but is not guaranteed accurate by the MLS. All information should be independently reviewed and verified for accuracy. IDX information is provided exclusively for consumers’ personal, noncommercial use and may not be used for any purpose other than to identify prospective properties consumers may be interested in purchasing.

 
 

 

 

Hi there! How can we help you?

Contact us using the form below or give us a call.

Send Us A Message:

I agree to receive marketing and customer service calls and text messages from Real Estate of Winter Park. To opt out, you can reply 'stop' at any time or click the unsubscribe link in the emails. Consent is not a condition of purchase. Msg/data rates may apply. Msg frequency varies. Privacy Policy.

Do not fill in this field:

This site is protected by reCAPTCHA and the Google Privacy Policy and Terms of Service apply.

Reach Out To A Real Estate Of Winter Park Agent

Do not fill in this field:

I agree to receive marketing and customer service calls and text messages from Real Estate of Winter Park. To opt out, you can reply 'stop' at any time or click the unsubscribe link in the emails. Consent is not a condition of purchase. Msg/data rates may apply. Msg frequency varies. Privacy Policy.

This site is protected by reCAPTCHA and the Google Privacy Policy and Terms of Service apply.