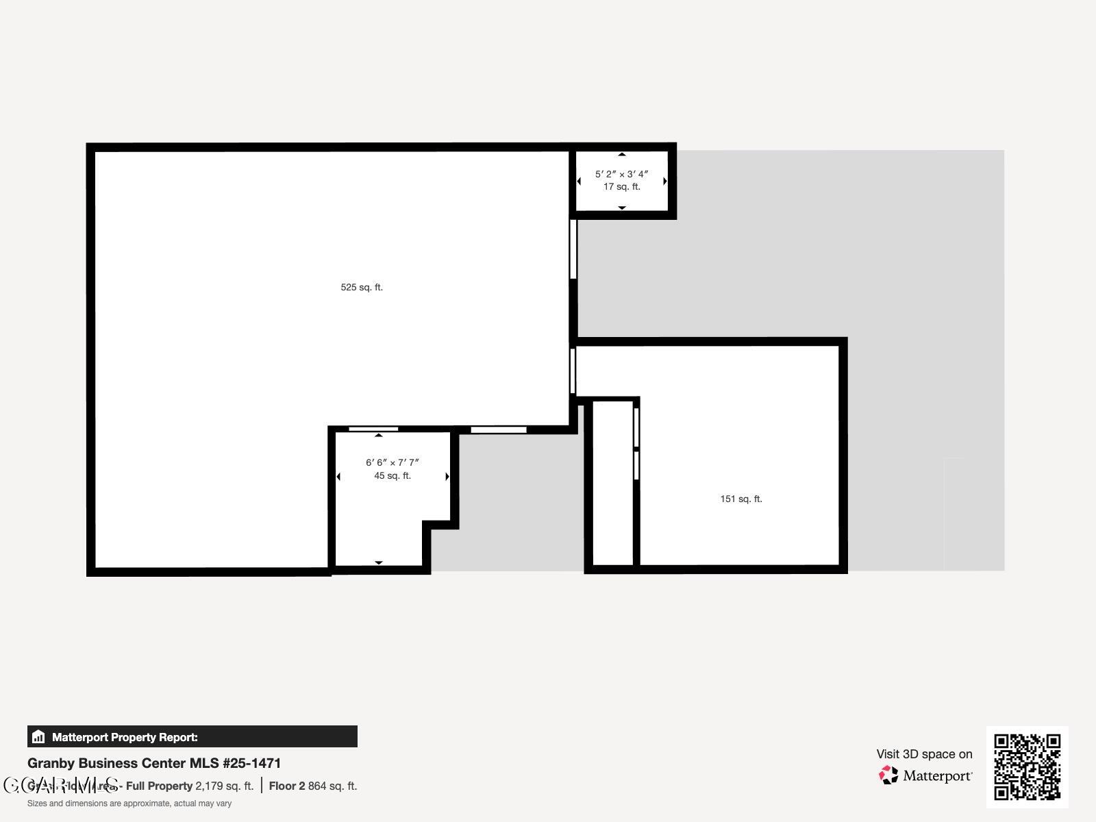
Unique Hybrid Condo Property- Commercial Space + Live/Work Potential Upstairs! Welcome to this one-of-a-kind mixed-use gem, where commercial opportunity meets flexible living potential! This versatile two-story building offers endless possibilities for business owners, investors or creatives seeking a space that truly does it all. The main level features a spacious commercial area equipped with AC, a garage door for easy access (just needs re-conversion) and the potential for multiple offices or work areas. A commercial kitchen opens up even more possibilities. This could be a perfect layout for food production, catering, grab and go deli or prep for special events. There's also ample storage throughout, making it ideal for operations of any scale. Upstairs, discover a generous live/work/flex space that could be transformed into employee housing, owner's suite or additional office/studio space. The open layout offers flexibility to fit your needswhether you envision a modern apartment, co-working loft or creative studio. With tons of potential and the option to lease all or part of the property, this building is a rare find for entrepreneurs looking to combine business + lifestyle in one location.

Listing Tools

Listed by Meg Mizell and Lisa Waldorf of Real Estate of Winter Park

Property Details of 62543 Us Highway 40, Unit G

Property Details

Interior Features

Exterior Features

Utilities and Appliances

Community

Map Location

Driving Directions

 Based on information submitted to the Grand County BoR MLS as of March 16, 2026 2:16 PM EDT . All data is deemed reliable but is not guaranteed accurate by the MLS. All information should be independently reviewed and verified for accuracy. IDX information is provided exclusively for consumers’ personal, noncommercial use and may not be used for any purpose other than to identify prospective properties consumers may be interested in purchasing.

 
 

 

 

Hi there! How can we help you?

Contact us using the form below or give us a call.

Send Us A Message:

I agree to receive marketing and customer service calls and text messages from Real Estate of Winter Park. To opt out, you can reply 'stop' at any time or click the unsubscribe link in the emails. Consent is not a condition of purchase. Msg/data rates may apply. Msg frequency varies. Privacy Policy.

Do not fill in this field:

This site is protected by reCAPTCHA and the Google Privacy Policy and Terms of Service apply.

Reach Out To A Real Estate Of Winter Park Agent

Do not fill in this field:

I agree to receive marketing and customer service calls and text messages from Real Estate of Winter Park. To opt out, you can reply 'stop' at any time or click the unsubscribe link in the emails. Consent is not a condition of purchase. Msg/data rates may apply. Msg frequency varies. Privacy Policy.

This site is protected by reCAPTCHA and the Google Privacy Policy and Terms of Service apply.