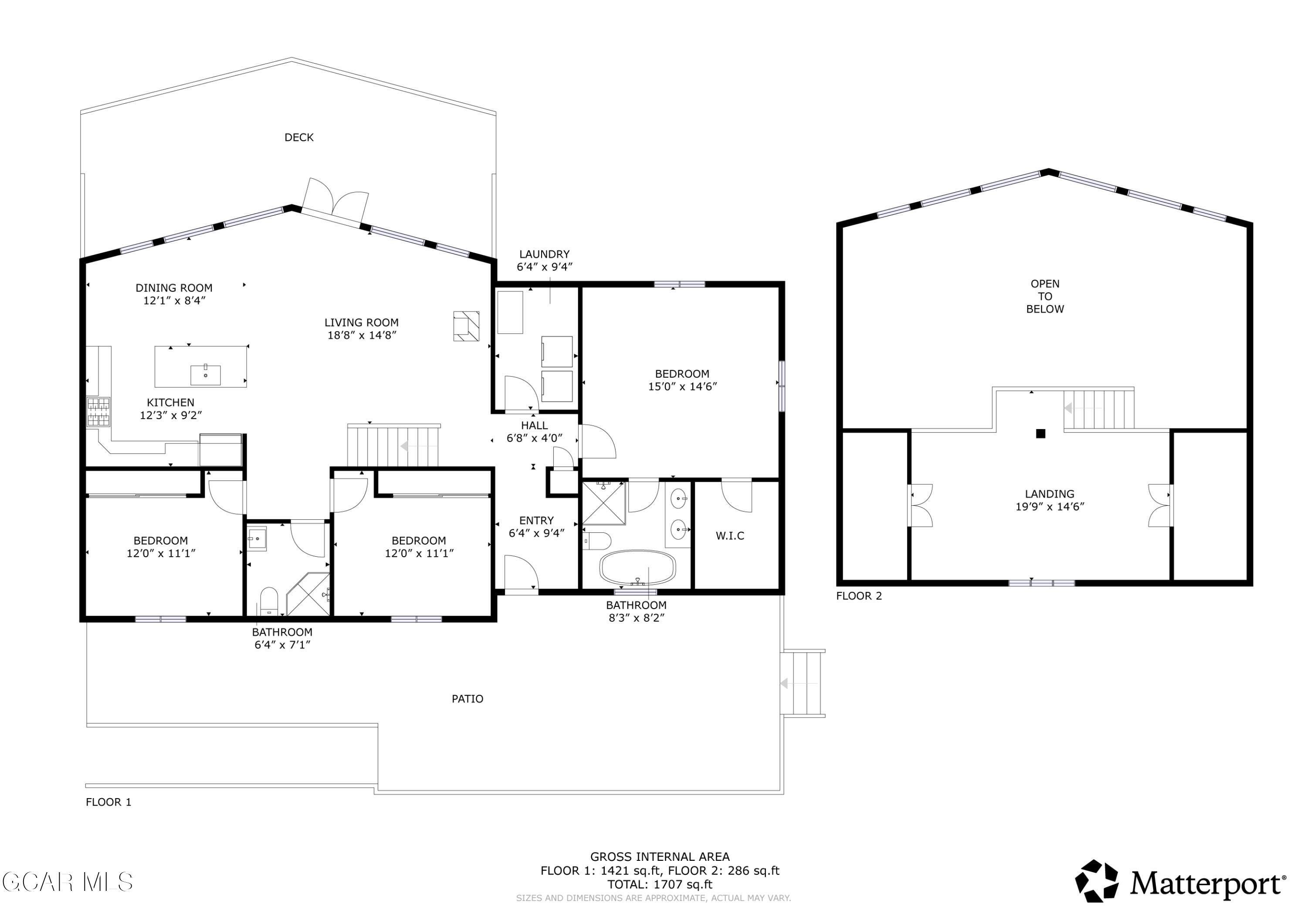
Set in a peaceful pocket just outside of Rocky Mountain National Park, this thoughtfully updated home offers a rare blend of privacy, accessibility, and everyday livability. Positioned across from a quiet meadow, creating a natural buffer--and a front-row seat to Grand County wildlife, where elk and deer are frequent visitors. Inside, the main level lives comfortably with all three bedrooms and two bathrooms, along with an open-concept kitchen, dining, and living area designed to feel connected to the outdoors. A wall of windows fills the space with natural light and frames the surrounding landscape, while recent upgrades--including hickory flooring and a fully renovated kitchen with new cabinets, countertops and appliances, including an induction range. To finish it off with new bathrooms--bring a fresh, modern feel to this home. One bathroom is ADA-friendly, and the home is designed with accessibility in mind. The primary suite is spacious and bright, creating a quiet retreat at the end of the day. A cozy loft adds flexibility for a home office, reading nook, or creative space. Additional improvements include a brand-new furnace and water heater, and a recently updated roof offering peace of mind for years to come. A wood stove adds warmth and character for mountain evenings. Located just a short walk to Lake Granby and minutes from the charm of Grand Lake, this home puts you close to everything--skiing at Granby Ranch and Winter Park Resort, miles of trails for hiking, biking, snowshoeing, and cross-country skiing, plus fishing on nearby lakes and rivers. No HOA and an ideal location make this a standout option for those seeking a low-maintenance mountain basecamp or full-time residence.

Listing Tools

Listed by Katie Riemenschneider of Real Estate of Winter Park

Property Details of 18 GCR 4435

Property Details

Interior Features

Exterior Features

Utilities and Appliances

Community

Map Location

Driving Directions

 Based on information submitted to the Grand County BoR MLS as of April 14, 2026 1:16 PM EDT . All data is deemed reliable but is not guaranteed accurate by the MLS. All information should be independently reviewed and verified for accuracy. IDX information is provided exclusively for consumers’ personal, noncommercial use and may not be used for any purpose other than to identify prospective properties consumers may be interested in purchasing.

 
 

 

 

Hi there! How can we help you?

Contact us using the form below or give us a call.

Send Us A Message:

I agree to receive marketing and customer service calls and text messages from Real Estate of Winter Park. To opt out, you can reply 'stop' at any time or click the unsubscribe link in the emails. Consent is not a condition of purchase. Msg/data rates may apply. Msg frequency varies. Privacy Policy.

Do not fill in this field:

This site is protected by reCAPTCHA and the Google Privacy Policy and Terms of Service apply.

Reach Out To A Real Estate Of Winter Park Agent

Do not fill in this field:

I agree to receive marketing and customer service calls and text messages from Real Estate of Winter Park. To opt out, you can reply 'stop' at any time or click the unsubscribe link in the emails. Consent is not a condition of purchase. Msg/data rates may apply. Msg frequency varies. Privacy Policy.

This site is protected by reCAPTCHA and the Google Privacy Policy and Terms of Service apply.