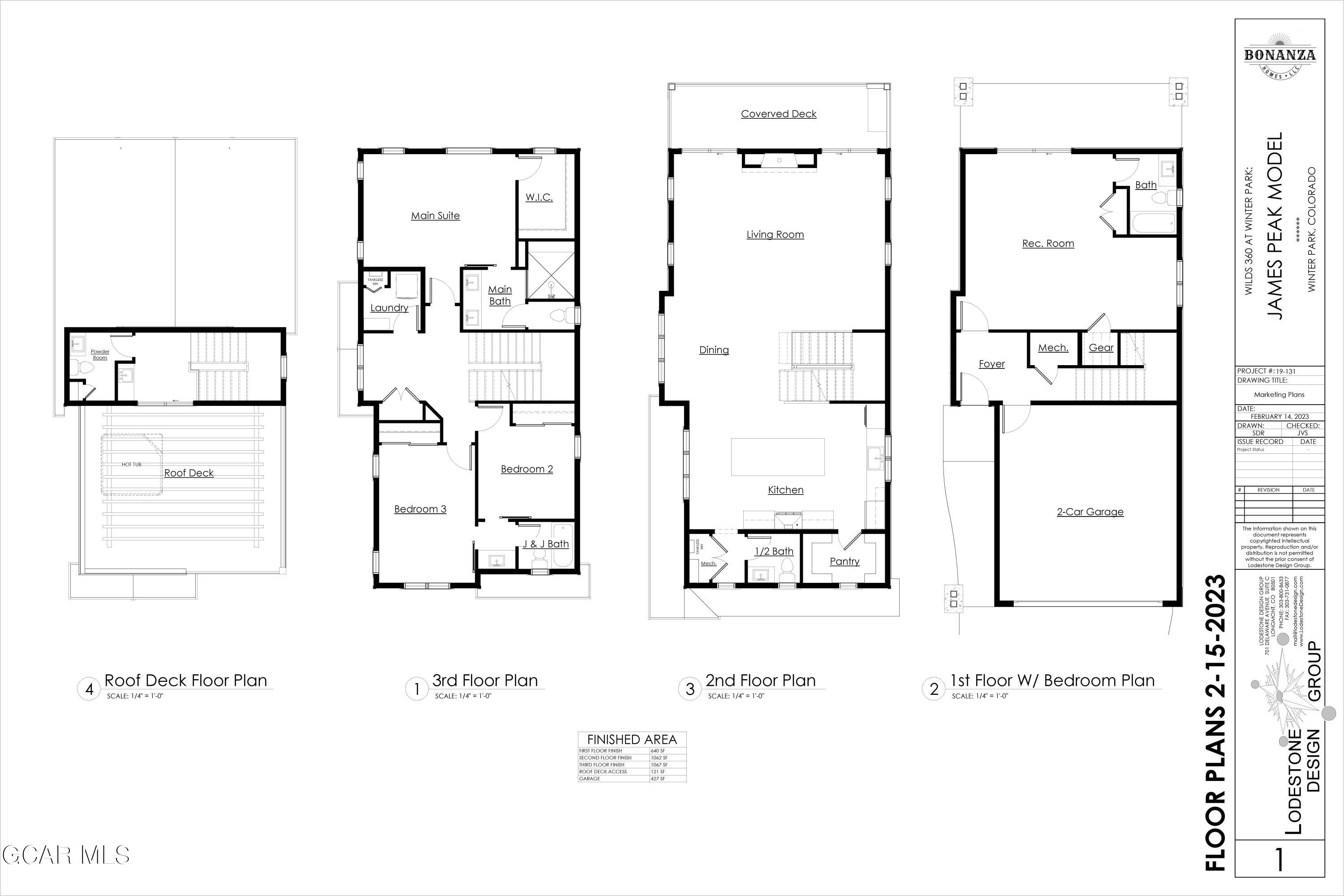
This highly sought after James Peak floor plan boast spectacular view of the James Peak, Parry Peak and the Winter Park Ski Area from your rec-room, main floor living room, primary bedroom & generous rooftop deck. With 4 full bedrooms, plus a bunk/rec-room you will have plenty of room for everyone. This new home is walkable to hundreds of miles of trails, restaurants, shops, the summer outdoor concert venue, and all of the amenities in the town of Winter Park. Featuring the fresh mountain modern design you've been looking for with a huge great room on the main floor with 10 ft ceilings. Premium finishes include, hard surface flooring in main living areas, knotty Alder doors & trim, open staircase timber treads and luxury appliances and finishes. These homes are built for an active Colorado lifestyle. This is the style and substance targeted towards a discerning mountain homeowner. With optional floor plans, this home features 3 or 4 bedrooms, 2 living areas, 3 private outdoor spaces including a roof-top deck with epic views of the Continental Divide and ski area (with roof-top snow melt system), large gourmet kitchen, in-floor radiant heat, heated 2 car garage, and a smart home technology package. Estimated annual vacation rental revenue of up to $125,000.
Listing Tools
Success!
While you wait to hear back from us:
Hi there! How can we help you?
Contact us using the form below or give us a call.
Listed by Team TREC - The Real Estate Company of The Real Estate Company
Property Details of 4 Ramble Lane
Map Location
Based on information submitted to the Grand County BoR MLS as of November 10, 2025 6:16 PM EST . All data is deemed reliable but is not guaranteed accurate by the MLS. All information should be independently reviewed and verified for accuracy. IDX information is provided exclusively for consumers’ personal, noncommercial use and may not be used for any purpose other than to identify prospective properties consumers may be interested in purchasing.
Success!
While you wait to hear back from us:
Hi there! How can we help you?
Contact us using the form below or give us a call.
Send Us A Message:
Reach Out To A Real Estate Of Winter Park Agent
FLW Granby
346 GCR 6236s Granby CO 80446
- List Price$2,200,000
- Bedrooms5
- Bathroom4
- Address346 GCR 6236s
- TownGranby
- StateCO
- Broker NameReal Estate of Winter Park
485 West Homestead Drive Granby CO 80446
- List Price$1,400,000
- Bedrooms4
- Bathroom3
- Address485 West Homestead Drive
- TownGranby
- StateCO
- Broker NameReal Estate of Winter Park
307 East Jasper Avenue Granby CO 80446
- List Price$1,150,000
- Bedrooms9
- Bathroom8
- Address307 East Jasper Avenue
- TownGranby
- StateCO
- Broker NameReal Estate of Winter Park
103 Saddle Mountain Camp Granby CO 80446
- List Price$1,095,000
- Bedrooms3
- Bathroom3
- Address103 Saddle Mountain Camp
- TownGranby
- StateCO
- Broker NameReal Estate of Winter Park
210 Elk Track Circle Granby CO 80446
- List Price$999,000
- Bedrooms4
- Bathroom4
- Address210 Elk Track Circle
- TownGranby
- StateCO
- Broker NameReal Estate of Winter Park
1431 Wildhorse Drive Granby CO 80446
- List Price$995,000
- Bedrooms3
- Bathroom3
- Address1431 Wildhorse Drive
- TownGranby
- StateCO
- Broker NameKeller Williams Advantage Realty,LLC
126 Eagle Ridge Drive Granby CO 80446
- List Price$920,000
- Bedrooms3
- Bathroom4
- Address126 Eagle Ridge Drive
- TownGranby
- StateCO
- Broker NameLIV Sotheby's International DT
127 GCR 8947 / Silversage Road Granby CO 80446
- List Price$890,000
- Bedrooms3
- Bathroom4
- Address127 GCR 8947 / Silversage Road
- TownGranby
- StateCO
- Broker NameReal Estate of Winter Park
300 Base Camp Circle Granby CO 80446
- List Price$799,000
- Bedrooms3
- Bathroom3
- Address300 Base Camp Circle
- TownGranby
- StateCO
- Broker NameLIV Sotheby's International DT
62543 Us Highway 40 Granby CO 80446
- List Price$495,000
- Bedrooms1
- Bathroom2
- Address62543 Us Highway 40
- TownGranby
- StateCO
- Broker NameReal Estate of Winter Park
156 Village Road Granby CO 80446
- List Price$479,000
- Bedrooms2
- Bathroom2
- Address156 Village Road
- TownGranby
- StateCO
- Broker NameReal Estate of Winter Park
207 Lake Drive Granby CO 80446
- List Price$465,000
- Bedrooms3
- Bathroom2
- Address207 Lake Drive
- TownGranby
- StateCO
- Broker NameReal Estate of Winter Park
267 GCR 8910 Granby CO 80446
- List Price$460,000
- Bedrooms3
- Bathroom2
- Address267 GCR 8910
- TownGranby
- StateCO
- Broker NameReal Estate of Winter Park
96 Mountainside Drive Granby CO 80446
- List Price$425,000
- Bedrooms3
- Bathroom3
- Address96 Mountainside Drive
- TownGranby
- StateCO
- Broker NameReal Estate of Winter Park
558 GCR 6234 Granby CO 80446
- List Price$335,000
- Address558 GCR 6234
- TownGranby
- StateCO
- Broker NameReal Estate of Winter Park
1550-1580 Wildhorse Circle Granby CO 80446
- List Price$294,000
- Address1550-1580 Wildhorse Circle
- TownGranby
- StateCO
- Broker NameReal Estate of Winter Park
62927 Us Highway 40 Granby CO 80446
- List Price$285,000
- Bedrooms2
- Bathroom2
- Address62927 Us Highway 40
- TownGranby
- StateCO
- Broker NameReal Estate of Winter Park
1010 Cumulus Way Granby CO 80446
- List Price$250,000
- Address1010 Cumulus Way
- TownGranby
- StateCO
- Broker NameReal Estate of Winter Park
551 Summit Trail Granby CO 80446
- List Price$231,000
- Bedrooms2
- Bathroom2
- Address551 Summit Trail
- TownGranby
- StateCO
- Broker NameReal Estate of Winter Park
161 Quandary Drive Granby CO 80446
- List Price$229,000
- Bedrooms2
- Bathroom3
- Address161 Quandary Drive
- TownGranby
- StateCO
- Broker NameReal Estate of Winter Park
62927 Us Highway 40 (door 547 & 549) Granby CO 80446
- List Price$225,000
- Bedrooms1
- Bathroom2
- Address62927 Us Highway 40 (door 547 & 549)
- TownGranby
- StateCO
- Broker NameReal Estate of Winter Park
1571-1580 Wildhorse Granby CO 80446
- List Price$220,000
- Address1571-1580 Wildhorse
- TownGranby
- StateCO
- Broker NameReal Estate of Winter Park
62927 Us Highway 40 Granby CO 80446
- List Price$195,000
- Bedrooms1
- Bathroom1
- Address62927 Us Highway 40
- TownGranby
- StateCO
- Broker NameReal Estate of Winter Park
62927 Us Highway 40 Granby CO 80446
- List Price$189,900
- Bedrooms1
- Bathroom1
- Address62927 Us Highway 40
- TownGranby
- StateCO
- Broker NameReal Estate of Winter Park
2064 GCR 88 Granby CO 80446
- List Price$185,000
- Address2064 GCR 88
- TownGranby
- StateCO
- Broker NameReal Estate of Winter Park